伊都郡かつらぎ町大字笠田東・一戸建て
土地約105坪・笠田駅へ徒歩約6分・約5台の駐車スペースあり・笠田中学校が目の前・諸条件相談します
オープンハウス
- ※事前に必ず予約してください
- 事前予約制オープンハウス
ローンシミュレーションこの物件を購入した場合の、月々の支払い価格の一例です。借り入れを保証するものではございません。
- 返済期間
-
- 金利
-
- ボーナス時の増額(1回分)
-
- 借入金額:
-
- 頭金:
-

- 毎月の返済額:
(※元利均等方式 金利5.00%まで ※返済年数5~50年まで入力できます)
(※ボーナスは年2回で計算しています。1000万円まで入力できます)
(※物件購入時、その他諸費用が発生する場合がございます)
担当者のコメント 中村 宏

- 土地約105坪・笠田駅へ徒歩約6分・約5台の駐車スペースあり・笠田中学校が目の前・諸条件相談します
ポイント・特徴
物件概要
【中古一戸建】 物件番号:47393900 情報更新日:2025年12月07日 次回更新予定日:2025年12月21日| 所在地 | 和歌山県伊都郡かつらぎ町大字笠田東101-3 | ||
|---|---|---|---|
| 交通 | |||
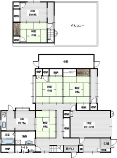
| 間取り/詳細 |
6DK/ DK 7.0帖 1室/洋室 10.0帖 1室/和室 8.0帖 1室/和室 8.0帖 1室/和室 6.0帖 1室/洋室 6.0帖 1室/和室 6.0帖 1室 |
建物面積(坪数) | 94.21㎡(28.49坪) |
| 価格 | 780万円 | ||
| 駐車場/月額料金 | 有(5台)/0円 駐車場は、専用通路部分に、縦に駐車することになります。 | ||
| 土地の敷金/保証金 | -/- | 借地料/借地期間 | -/- |
| 土地権利 | 所有権 | 土地面積(坪数) | 347.88㎡(105.23坪) |
| 傾斜地部分面積 | - | 路地状敷地 | - |
| 私道負担面積/セットバック | -/無 | 高圧線下面積 | - |
| 地目/地勢 | 宅地/平坦 | 接道状況 | 一方(西 公道 8.0m 間口 2.0m) |
| 建ぺい率/容積率 | 60%/200% | 用途地域 | 無指定 |
| 都市計画 | 非線引区域 | 種別/構造 | 中古一戸建/木造 |
| 階建 | 2階建 | 築年月(築年数) | 1964年 1月 (築61年) |
| 総区画数/販売区画数 | -/1区画 | 向き | - |
| 現況 | 空家 | その他の法令上の制限 | - |
| 取引態様/引渡時期 | 一般媒介/相談 | 建築確認番号 | - |
| 物件番号 | 47393900 | 取引条件の有効期限 | 2025年12月21日 |
| 設備条件 |
|
||
| 備考 | ご不明な点、ご質問等がありましたら、気兼ねなく、ご一報下さいませ・住宅ローンに、ご不安のあるお客様も、ご相談させて下さい。私、店長の中村は、昭和62年から、不動産業界にお世話になっておりますので、約30年の経験を、惜しみなく伝授させて頂きます。 | ||
| 取扱会社 |
|
||
※地図上に表示される物件の位置は付近住所に所在することを表すものであり、実際の物件所在地とは異なる場合がございます。
















